Welcome

Barratt Homes would like your views on plans for 287 new homes on land off Hollins Bank, Hemsworth.

Accessed off Wakefield Road, this development would complement neighbouring developments and provide a mix of 1, 2, 3 & 4 beds properties.

To have your say, please complete our survey. All feedback will be considered as part of the emerging plans.

aerial photograph of the site with the proposals

The Site

The site is accessed from Wakefield Road with Hollins Bank and the Golf Course to the north. Existing housing is to the south of the site with the railway line to the east.

aerial photograph of the site

The proposals

The proposals comprise a sustainable mix of 1, 2, 3 & 4 beds, within a landscaped setting. The plans include:

home icon
Around 287 homes
house type icon
Mix of 1, 2 and 3 storey homes with dedicated parking spaces provided
tree icon
New areas of habitat creation and tree planting
car icon
Site access from Wakefield Road
footpath icon
Footpath and cycleway access across the development
design icon
High quality homes design
electric vehicle icon
Sustainable development, including an electric vehicle charging point for each home

IS THIS SITE ALLOCATED FOR HOUSING?

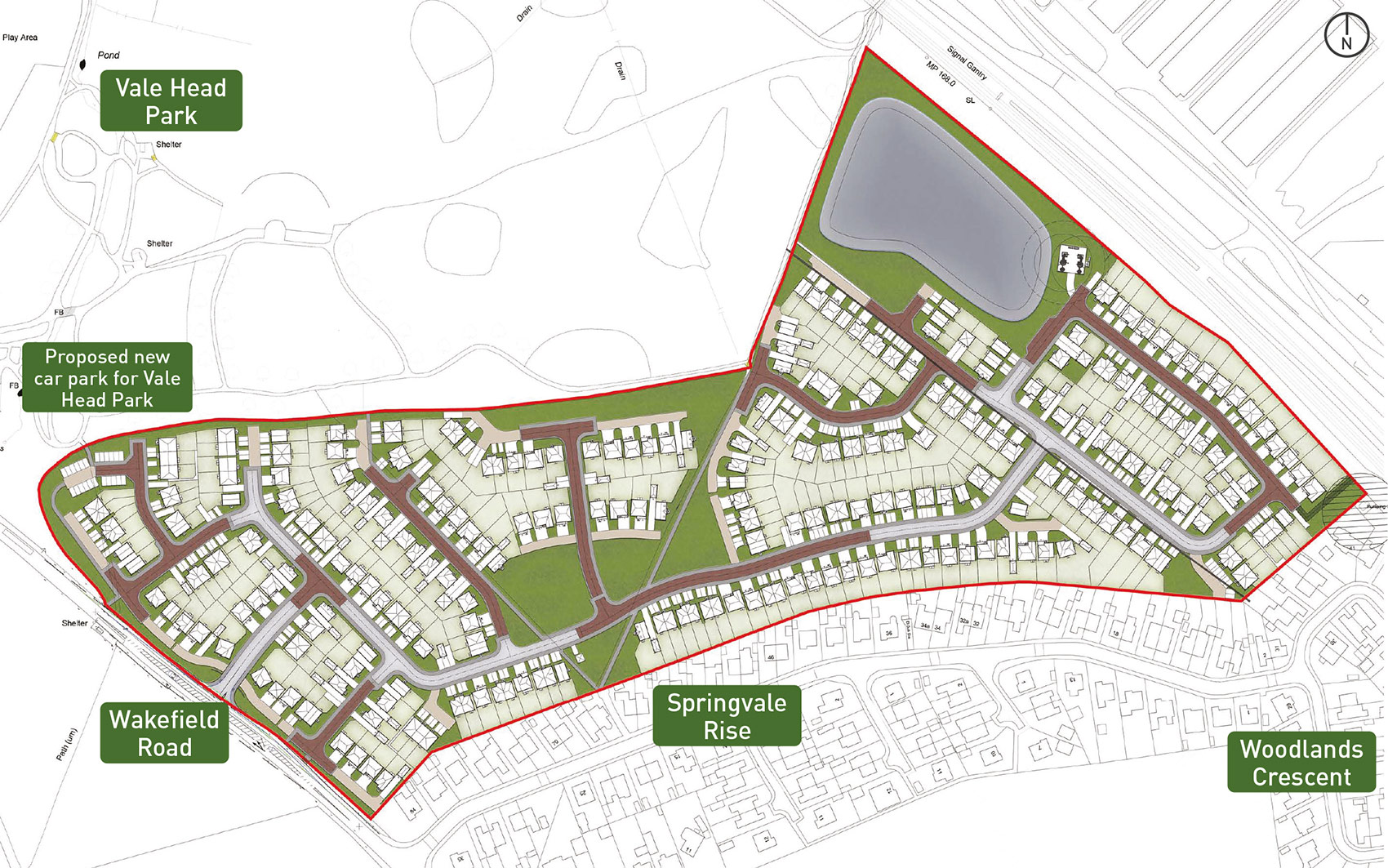
The site is allocated for housing in Wakefield Council’s recently adopted Local Plan. Barratt Homes has redesigned the previous site layout put forward at Local Plan stage. By doing this we have been able to provide generous rear gardens for those properties backing onto existing homes on Springvale Rise, and increase the number of homes which can be provided on the site.

proposed masterplan

Key Benefits

  • Much needed new homes
  • New greenspace created within the site
  • Employment opportunities during construction
  • Positive biodiversity net gain, with Barratt Homes making a financial contribution towards improvements to the neighbouring Valehead Park
  • All new homes will be energy efficient, featuring sustainable technology
detached and semi detached homes
bedroom
kitchen and dining room

Next steps

We intend to submit a detailed planning application to Wakefield Council in the coming weeks. Before that happens we would like to know what you think of the plans. To have your say, please complete a feedback form. If you have any queries, please contact us on 0800 089 0362 or scott@royalpilgrim.com.

aerial photograph of the site with the proposals

Have your say

We would like to know what you think of the proposals. To have your say, please complete the form below.

Having problems viewing the form? Click here